Agregaty pompowe serii ME
Przeznaczenie
Zostały zaprojektowane i wyprodukowane z myślą o szerokim zakresie odbiorców, do stosowania w wodzie czystej. W rolnictwie stosowane są zarówno do nawodnień ciśnieniowych jak i wszędzie w gospodarstwach gdzie wymagana jest stabilna charakterystyka pracy i prosta obsługa. W przemyśle stosowane do instalacji stałych i mobilnych, transportu cieczy, podnoszenia, w instalacjach obiegowych i dla celów przeciwpożarowych. Ponadto mogą być wykorzystywane do napełniania zbiorników, odwadniania, opróżniania cystern i piwnic, itp.
Budowa
Jest to poziomy monoblok pompy jednostopniowej i silnika trójfazowego. Części hydrauliczne wykonane są jako odlewy z wysokiej jakości żeliwa. Wirnik zamknięty również jako odlew żeliwny wyważany łatwy do ewentualnego demontażu. Standardowo sznurowe uszczelnienie wału. Tuleja uszczelnienia zapobiega nadmiernemu zużywaniu się wału. Uszczelnienie mechaniczne jako opcja. Silnik asynchroniczny typu zamkniętego z zewnętrzną wentylacją, zabezpieczenie IP 55, klasa izolacji F. Łożyska silnika bezobsługowe.

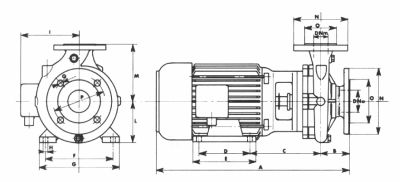
Wymiary ogólne
(Wybrane modele)
|
Numer katalogowy
|
Wymiar [mm]
|
Masa [kg]
|
||||||||||
|
Dna
|
DNm
|
A
|
B
|
C
|
D
|
E
|
F
|
G
|
H
|
M+L
|
||
|
UK22,MEW4/32B
|
50
|
32
|
507
|
80
|
180
|
140
|
170
|
160
|
195
|
12
|
280
|
42
|
|
UK22,MEW5,5/32
|
50
|
32
|
527
|
80
|
187
|
140
|
175
|
190
|
230
|
12
|
292
|
52
|
|
UK22,MEW7,5/40BN
|
65
|
40
|
632
|
100
|
201
|
178
|
220
|
216
|
260
|
12
|
312
|
73
|
|
UK22,MEW10/40BN
|
65
|
40
|
632
|
100
|
201
|
178
|
220
|
216
|
260
|
12
|
312
|
80
|
|
UK22,MEW20/40
|
65
|
40
|
769
|
100
|
247
|
254
|
300
|
254
|
305
|
14
|
385
|
122
|
|
UK22,MEW12,5/40A
|
65
|
40
|
632
|
100
|
201
|
178
|
220
|
216
|
260
|
12
|
312
|
83
|
|
UK22,MEW25/50
|
65
|
50
|
755
|
95
|
238
|
254
|
300
|
254
|
305
|
14
|
400
|
142
|
|
UK22,MEW30/65A
|
80
|
65
|
771
|
105
|
244
|
254
|
300
|
254
|
305
|
14
|
410
|
146
|
Charakterystyki pracy
|
Numer katalogowy
|
Silnik [kW]
|
X
|
Wydajność [m3/h]
|
||||||||||||
|
6
|
9
|
12
|
15
|
18
|
21
|
24
|
30
|
36
|
42
|
54
|
72
|
||||
|
UK22,MEW4/32B
|
3
|
Podnoszenie [m] ¯
|
46
|
44
|
41
|
35
|
|
|
|
|
|
|
|
|
|
|
UK22,MEW5,5/32
|
4
|
51
|
50
|
48
|
45
|
40
|
34
|
|
|
|
|
|
|
||
|
UK22,MEW7,5/40BN
|
5,5
|
|
|
48,2
|
47,4
|
46,3
|
44,9
|
43,0
|
38,8
|
32
|
|
|
|
||
|
UK22,MEW10/40BN
|
7,5
|
|
|
61
|
61
|
60
|
59
|
57
|
53
|
48
|
|
|
|
||
|
UK22,MEW20/40
|
15
|
|
|
85
|
84
|
83
|
81,2
|
78,7
|
70
|
|
|
|
|
||
|
UK22,MEW12,5/40A
|
9,2
|
|
|
|
|
58
|
57
|
56
|
54
|
50
|
45
|
|
|
||
|
UK22,MEW25/50
|
19
|
|
|
|
|
|
|
83
|
81
|
79
|
77
|
70
|
|
||
|
UK22,MEW30/65A
|
22
|
|
|
|
|
|
|
|
|
66
|
65,4
|
63,5
|
57,5
|
||
*Agregat pompowy z przeznaczeniem na rynek pozaunijny.
Aby uzyskać szczegółowe informacje na temat cen naszych produktów, prosimy o kontakt poprzez formularz na stronie lub wysłanie wiadomości e-mail na adres lukomet@lukomet.pl.
Odpowiemy tak szybko, jak to możliwe, podając indywidualną ofertę.
KontaktPrzeznaczenie
Zostały zaprojektowane i wyprodukowane z myślą o szerokim zakresie odbiorców, do stosowania w wodzie czystej. W rolnictwie stosowane są zarówno do nawodnień ciśnieniowych jak i wszędzie w gospodarstwach gdzie wymagana jest stabilna charakterystyka pracy i prosta obsługa. W przemyśle stosowane do instalacji stałych i mobilnych, transportu cieczy, podnoszenia, w instalacjach obiegowych i dla celów przeciwpożarowych. Ponadto mogą być wykorzystywane do napełniania zbiorników, odwadniania, opróżniania cystern i piwnic, itp.
Budowa
Jest to poziomy monoblok pompy jednostopniowej i silnika trójfazowego. Części hydrauliczne wykonane są jako odlewy z wysokiej jakości żeliwa. Wirnik zamknięty również jako odlew żeliwny wyważany łatwy do ewentualnego demontażu. Standardowo sznurowe uszczelnienie wału. Tuleja uszczelnienia zapobiega nadmiernemu zużywaniu się wału. Uszczelnienie mechaniczne jako opcja. Silnik asynchroniczny typu zamkniętego z zewnętrzną wentylacją, zabezpieczenie IP 55, klasa izolacji F. Łożyska silnika bezobsługowe.

Wymiary ogólne
(Wybrane modele)
|
Numer katalogowy
|
Wymiar [mm]
|
Masa [kg]
|
||||||||||
|
Dna
|
DNm
|
A
|
B
|
C
|
D
|
E
|
F
|
G
|
H
|
M+L
|
||
|
UK22,MEW4/32B
|
50
|
32
|
507
|
80
|
180
|
140
|
170
|
160
|
195
|
12
|
280
|
42
|
|
UK22,MEW5,5/32
|
50
|
32
|
527
|
80
|
187
|
140
|
175
|
190
|
230
|
12
|
292
|
52
|
|
UK22,MEW7,5/40BN
|
65
|
40
|
632
|
100
|
201
|
178
|
220
|
216
|
260
|
12
|
312
|
73
|
|
UK22,MEW10/40BN
|
65
|
40
|
632
|
100
|
201
|
178
|
220
|
216
|
260
|
12
|
312
|
80
|
|
UK22,MEW20/40
|
65
|
40
|
769
|
100
|
247
|
254
|
300
|
254
|
305
|
14
|
385
|
122
|
|
UK22,MEW12,5/40A
|
65
|
40
|
632
|
100
|
201
|
178
|
220
|
216
|
260
|
12
|
312
|
83
|
|
UK22,MEW25/50
|
65
|
50
|
755
|
95
|
238
|
254
|
300
|
254
|
305
|
14
|
400
|
142
|
|
UK22,MEW30/65A
|
80
|
65
|
771
|
105
|
244
|
254
|
300
|
254
|
305
|
14
|
410
|
146
|
Charakterystyki pracy
|
Numer katalogowy
|
Silnik [kW]
|
X
|
Wydajność [m3/h]
|
||||||||||||
|
6
|
9
|
12
|
15
|
18
|
21
|
24
|
30
|
36
|
42
|
54
|
72
|
||||
|
UK22,MEW4/32B
|
3
|
Podnoszenie [m] ¯
|
46
|
44
|
41
|
35
|
|
|
|
|
|
|
|
|
|
|
UK22,MEW5,5/32
|
4
|
51
|
50
|
48
|
45
|
40
|
34
|
|
|
|
|
|
|
||
|
UK22,MEW7,5/40BN
|
5,5
|
|
|
48,2
|
47,4
|
46,3
|
44,9
|
43,0
|
38,8
|
32
|
|
|
|
||
|
UK22,MEW10/40BN
|
7,5
|
|
|
61
|
61
|
60
|
59
|
57
|
53
|
48
|
|
|
|
||
|
UK22,MEW20/40
|
15
|
|
|
85
|
84
|
83
|
81,2
|
78,7
|
70
|
|
|
|
|
||
|
UK22,MEW12,5/40A
|
9,2
|
|
|
|
|
58
|
57
|
56
|
54
|
50
|
45
|
|
|
||
|
UK22,MEW25/50
|
19
|
|
|
|
|
|
|
83
|
81
|
79
|
77
|
70
|
|
||
|
UK22,MEW30/65A
|
22
|
|
|
|
|
|
|
|
|
66
|
65,4
|
63,5
|
57,5
|
||
*Agregat pompowy z przeznaczeniem na rynek pozaunijny.
